Lineup 物件紹介

最終更新日時:

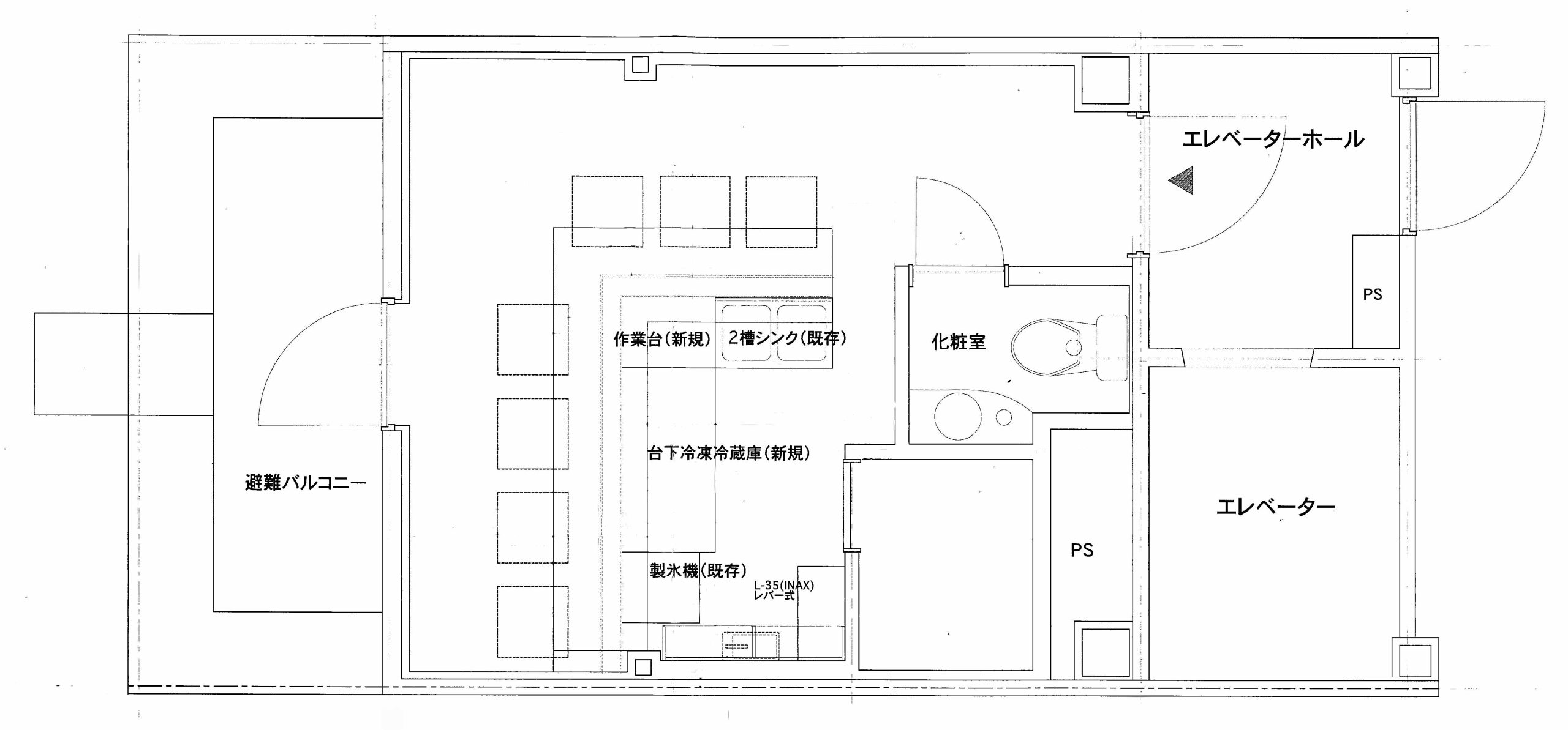
スコッチ館 流川 7F ワンフロア

月額賃料
132,000円(税込み)
所在地
広島市中区銀山町1-19
  • 写真:スコッチ館 流川 7F ワンフロア
  • 写真:スコッチ館 流川 7F ワンフロア
  • 写真:スコッチ館 流川 7F ワンフロア
  • 写真:スコッチ館 流川 7F ワンフロア
  • 写真:スコッチ館 流川 7F ワンフロア
  • 写真:スコッチ館 流川 7F ワンフロア
  • 写真:スコッチ館 流川 7F ワンフロア
  • 写真:スコッチ館 流川 7F ワンフロア
  • 写真:スコッチ館 流川 7F ワンフロア

ワンフロア1テナント

飲食店可

所在地
広島市中区銀山町1-19
月額賃料
132,000円
敷金
面積
25.1m²
坪数
7.6坪
保証金
500,000円
共益費
ゴミ代
その他
消費税
12,000円
月額合計
132,000円
備考
仲介手数料・礼金:各1ヶ月
前家賃
保険会社加入要
賃貸保証加入要

アイコン:地図マーカー エリア

アイコン:円マーク 価格

円~